Kirche Sanierung Pfarrhaus in Blasheim
Projektdetails
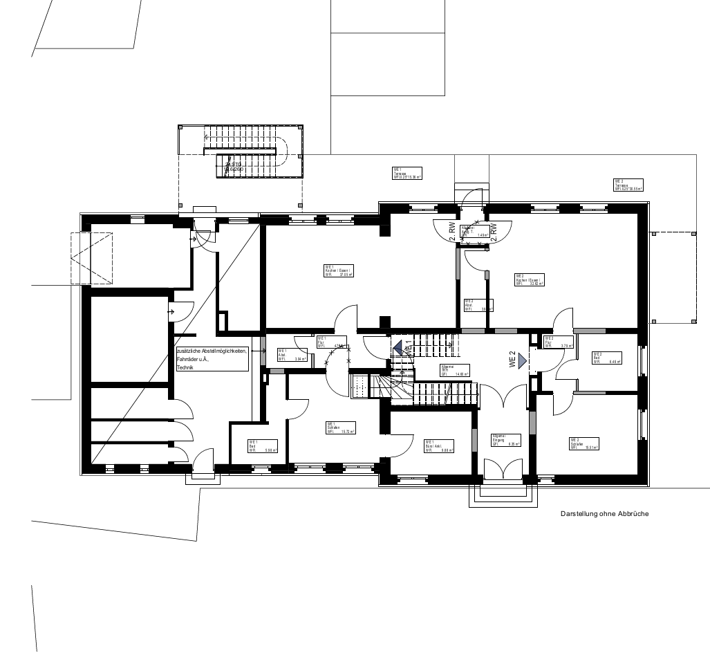
Die Kirchengemeinde plant den Umbau des ehemaligen Pfarrhauses zu einem Mehrfamilienhaus. Während Teile des Erdgeschosses weiterhin kirchlich genutzt werden, steht das Obergeschoss derzeit leer. Ein entsprechender Entwurf ermöglicht die Schaffung von vier bis fünf Wohneinheiten.
Projekt
Umbau, Sanierung und Erweiterung eines ehemaligen Pfarrhauses, Lübbecke
Auftraggeber
Kirchengemeinde Blasheim
Anrechenbare Kosten,
KG 300-400
KG 300-400
ca. 1 Mio. €
Leistungszeitraum
Februar 2025 - aktuell
Leistungsumfang
Objektplanung Gebäude & Innenräume, LPH 1 - 3 Energieberatung, Wärmeschutznachweis Beantragung von Fördermitteln
Größe und Kennwerte
BGF ca. 800 m²
BRI (nach Umbau) ca. 2.500 m³
Wohnfläche nach Umbau ca. 445 m²
BRI (nach Umbau) ca. 2.500 m³
Wohnfläche nach Umbau ca. 445 m²
Sie wollen mehr zu diesem Projekt erfahren?
Sie möchten gerne Ihr individuelles Projekt mit uns besprechen? Wir freuen uns, gemeinsam mit Ihnen Ihre genauen Anforderungen und Wünsche auszuloten.