Feuerwehrgerätehaus in Hitzhausen

Projektdetails

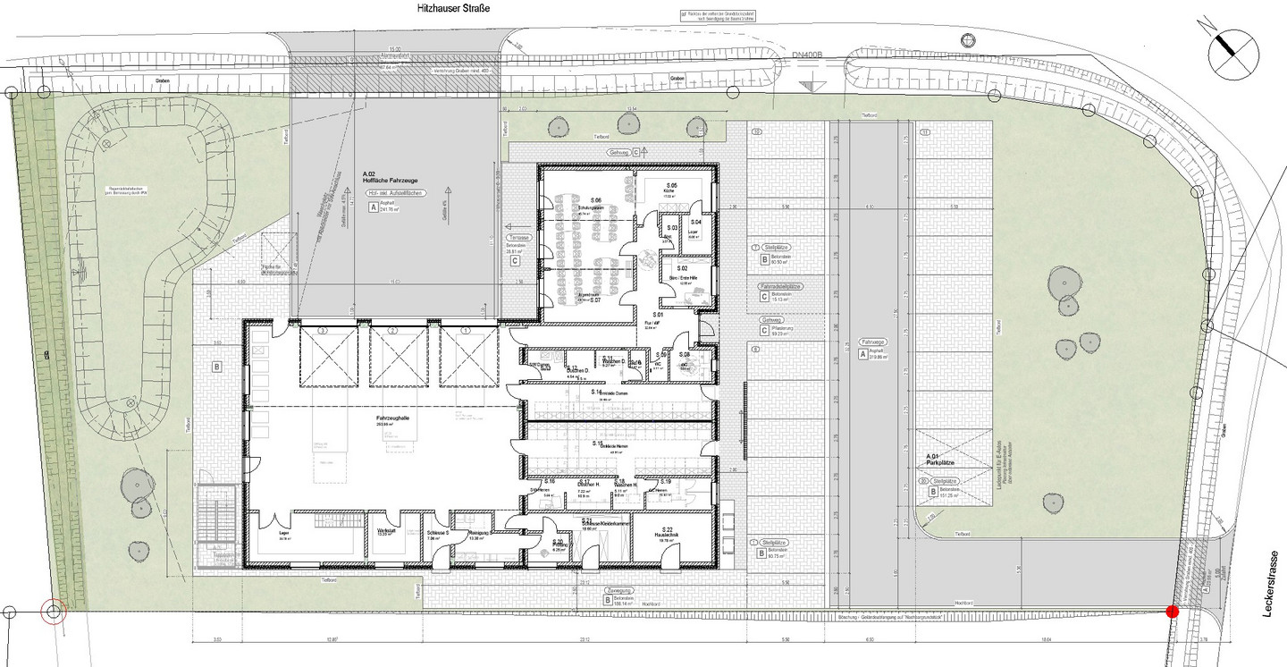
Der geplante Neubau des Feuerwehrgerätehauses schafft die notwendigen räumlichen und funktionalen Voraussetzungen für einen zeitgemäßen Feuerwehrbetrieb. Die Fahrzeughalle wird so dimensioniert, dass sie ausreichend Platz für moderne Neufahrzeuge sowie mögliche Fahrzeugerweiterungen bietet. Zwei getrennte Zufahrten für An- und Abfahrt ermöglichen ein sicheres und effizientes Ein- und Ausrücken der Einsatzfahrzeuge.

Parallel dazu entsteht ein strukturierter Sozialtrakt, der eine klare Trennung zwischen Einsatzbereich und Sozialräumen gewährleistet und damit den heutigen Anforderungen an Arbeitsund Hygienestandards entspricht. Dieser enthält 2 Schulungsräume, Küche, Büro und WC-Anlagen.

Um auch künftig eine leistungsfähige, moderne und den aktuellen Sicherheits- und Funktionsanforderungen entsprechende Einsatzorganisation sicherzustellen.

Projekt
Neubau, Feuerwehrgerätehaus, Hitzhausen
Auftraggeber
Gemeinde Ostercappeln
Anrechenbare Kosten,
KG 300-400
1.850.000 €
Leistungszeitraum
März 2024 - aktuell
Leistungsumfang
Objektplanung Gebäude und Innenräume LPH 1 bis 9, Wärmeschutz, Statik, TGA, SiGeKo, Entwässerungsplanung
Größe und Kennwerte
BGF = 753 m² 
BRI = 4.430 m³

Grundriss

Projektansichten

Sie wollen mehr zu diesem Projekt erfahren?

Sie möchten gerne Ihr individuelles Projekt mit uns besprechen? Wir freuen uns, gemeinsam mit Ihnen Ihre genauen Anforderungen und Wünsche auszuloten.

Nach oben